おすすめ Sale
2025年10月完成予定!ルーフバルコニーからは江ノ島や富士山が望めます!
葉山町一色 新築戸建て
神奈川県三浦郡葉山町一色1367-7 交通:JR横須賀線「逗子駅」からバスで14分、「葉山町役場停」徒歩5分
物件価格8,480万円

物件情報
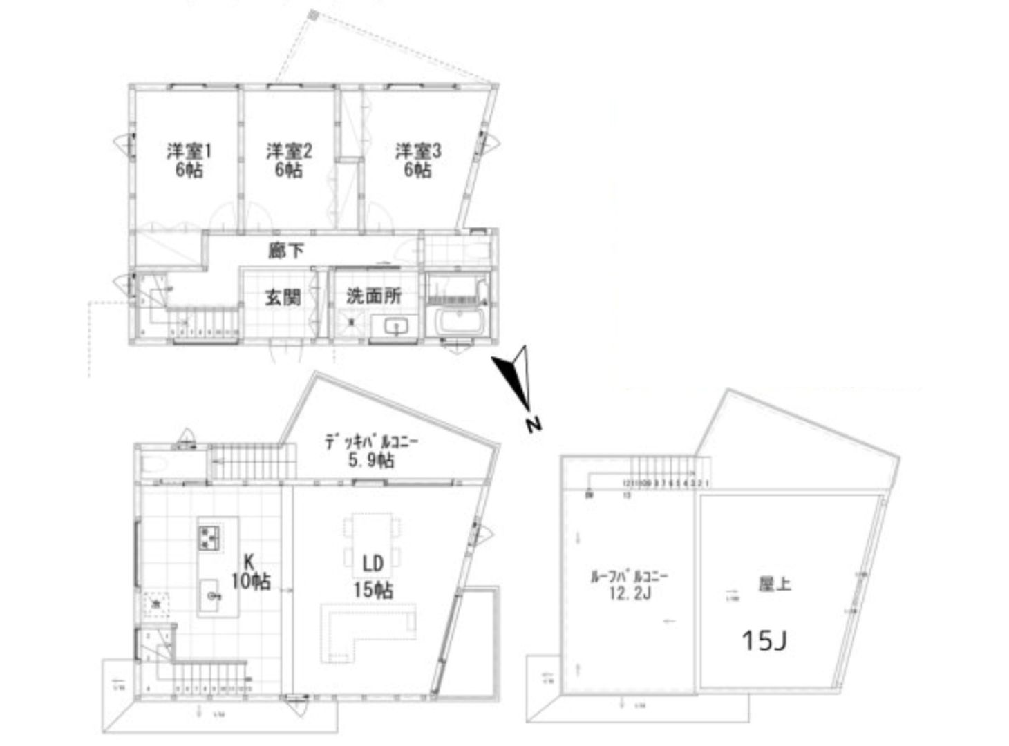
- 間取り
- 3LDK+RB
- 建築年月
- 2025年10月
- 取引形態
- 一般仲介
- 延床面積
- 102.68㎡
・2025年10月完成予定!先行公開!
・27帖の屋上からは、江ノ島や富士山も望めるオーシャンビュー物件!
・キッチンはアイランドキッチンで食洗機付き!
・洗面台は三面鏡付きを採用し、バスルームは窓付きです!
・プロパンガス、公営水道、公共下水
